• 首页
  • 快速门
  • 产品中心
  • 产品资讯
  • 合作案例
  • 百问百答
  • 走进西朗
  • 联系我们
  • 客户留言
返回首页|网站地图|联系我们

欢迎您访问"西朗门业"企业官方网站!

17751419837
西朗门业

一门一码
终身服务制度

  • 首 页
  • 快速门
    • 场景合集
  • 产品中心
    • 上海快速门上海铝合金卷帘门上海提升门上海防火门上海 平台/门封工业大风扇工业配件
  • 产品资讯
    • 公司新闻综合资讯行业资讯
  • 合作案例
    • 世界500强企业客户车辆装备电子行业医药洁净仓储物流食品饮料纺织行业能源环保精密制造机械设备包装印刷新型材料日化行业综合项目
  • 百问百答
    • 常见问题解答技术问题解答
  • 走进西朗
    • 公司简介资质和荣誉企业文化
  • 联系我们
  • 客户留言

您现在的位置:首页-产品中心-上海铝合金卷帘门

产品中心Product

上海快速门
上海铝合金卷帘门
厂房铝合金卷帘门 欧式铝合金卷帘门 钢制电动卷帘门 304不锈钢卷帘门 防爆电动卷帘门 钢质防火卷帘门 钢结构厂房钢制抗风卷帘门 无机布特级防火卷帘门
更多
上海提升门
上海防火门
上海 平台/门封
工业大风扇
工业配件
产品名称:无机布特级防火卷帘门
产品型号:F-098
产品简介:

广泛使用于不设自动喷淋系统的场合,节能,节省投资。

详细介绍

无机特级防火卷帘门

 

适用于不设自动喷淋系统的场合,节能,节省投资
SERANG西朗无机特级防火卷帘门,具有重量轻、减轻对建筑结构的负载;隔热性能好,价格低等优点。具有广阔的发展前景。
技术参数:
1、背火面平均温升≤140℃,单点最高温升≤180℃,耐火极限:≥3.0h;
2、启闭速度:2-9m/min;
3、漏烟量不大于0.2m3/m2min;

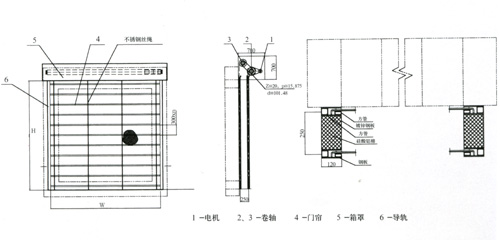
无机布防火卷帘门示意图

无机特级防火卷帘门实拍图

 

相关产品

厂房铝合金卷帘门

欧式铝合金卷帘门

钢制电动卷帘门

304不锈钢卷帘门

地址:苏州市吴中区木渎镇金桥经济开发区走马塘路59号

联系电话:周经理 17751419837           

邮箱: 2085656382@qq.com

快速门
场景合集
产品中心
上海快速门
上海铝合金卷帘门
上海提升门
上海防火门
上海 平台/门封
产品资讯
公司新闻
综合资讯
行业资讯
合作案例
世界500强企业客户
车辆装备
电子行业
医药洁净
仓储物流
Copyright 2011-2022 © 西朗门业上海分部 
上海快速门厂家、上海抗风堆积门、上海保温快速卷帘门、上海硬质快速门、上海电动卷帘门|管理后台

日上防盗门推拉门矿用暖风机防爆密闭门铝排管型材周边传动全桥刮泥机常州快速门厂家